桂林旗艦店外立面整體很有高級感
佛山總部抖音網紅(左2)與桂林團隊打卡
02:09

“不拘泥于環境,從產品中尋找創意和靈感”——羅嘉煒 桂林店主筆設計師
他說,輕奢的定義并非來自昂貴材料的堆砌拼湊,而是對輕奢健康生活的品味和理解——桂林店設計的構思:輕奢是主調,但不拘泥于一種特定風格的表達,敢于挑戰新鮮事物。
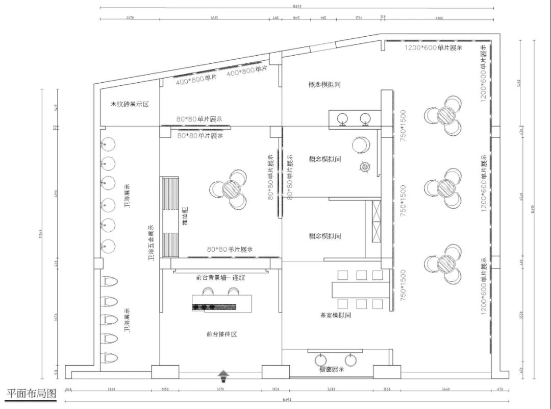
店面名稱:廣西桂林專賣店







現代輕奢設計只是第一步,產品高級感才撩人





立足高端 做消費者喜愛的設計師品牌


一個是設計師、業主購磚第一選擇,另一個是二次購買時他們對你自始至終的信任和傳播。對設計師、業主朋友而言,對藝術的追求,通過尊卓的產品和設計而實現。

祝福蔣總生意紅紅火火、大賣特賣